De uitvoering van de opdracht voor Mountainview Capital in Heusden is 100% naar wens. De verbinding tussen het kantoordeel en de vergaderruimte is heel mooi geworden. Eyecatcher is het glas met daarachter de middelhoge kast, die ervoor zorgt dat de mensen in de vergaderruimte zich niet de hele tijd bekeken voelen door de mensen in het kantoor. Verrassend is het contrast tussen de machtige monumentale buitenkant en het moderne interieur. Wie nu van binnen naar buiten loopt, reist eigenlijk heel even terug in de tijd.
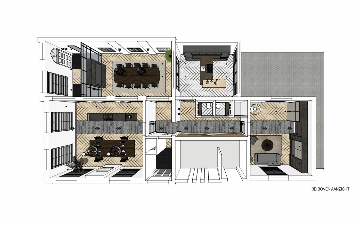
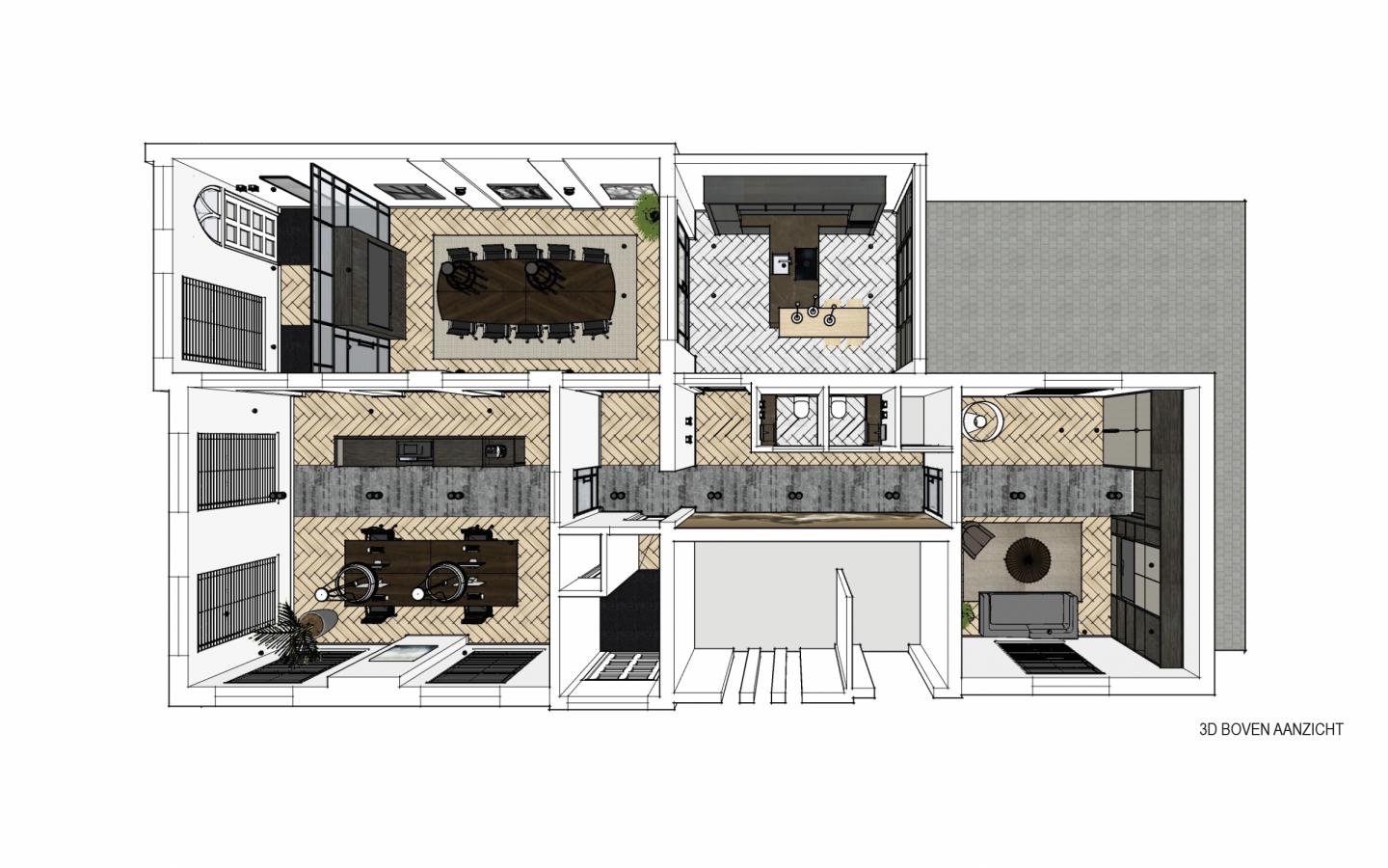
De werkwijze van Studio Arjan Hogers kent altijd een aantal zekerheden. De eerste ideeën qua routing en looplijnen bijvoorbeeld worden gecreëerd aan de tekentafel. Deze zijn essentieel, ongeacht het soort opdracht. Vervolgens worden de routing en looplijnen in 3D uitgewerkt. De opdrachtgever krijgt zo een mooi inzicht in hoe de ruimtes zich gaan verhouden. Ook voor Mountainview Capital zijn de lijnen en ideeën op deze wijze ontstaan. De grootste uitdaging was om zo weinig mogelijk te breken aan de bestaande muren, maar te werken met de indeling die er al was. Dat is gelukt. Volgende keer meer daarover.
De opdracht van Mountainview Capital was helder. Ontwerp een kantoorruimte voor 4 personen en creëer een grote vergaderruimte voor 10, plus een informele ruimte om zaken op ‘een andere manier’ te bespreken. De kers op de taart is de keuken die zowel voor de middaglunch, als voor een kok gebruikt wordt om te koken voor relaties. En niet onbelangrijk, het geheel moest een moderne look en feel hebben. Oftewel; kolfje naar onze hand. Hier zie je de huidige situatie. Nieuwsgierig naar het ontwerp? Blijf ons volgen!
Heusden is een prachtig vestigingsstadje aan de Maas tussen Brabant en Gelderland. Geen verkeerde plek om te werken. Mountainview Capital is het daarmee eens. Het bedrijf heeft Studio Arjan Hogers ingeschakeld om de kantoorruimte in het historische hart van het stadje te moderniseren. De relatie tussen Mountainview Capital en Studio Arjan Hogers bestaat overigens al langer. Altijd fijn om te mogen werken voor een tevreden opdrachtgever.


Heusden is een prachtig vestigingsstadje aan de Maas tussen Brabant en Gelderland. Geen verkeerde plek om te werken.
Nieuwe identiteit, nieuwe website, goed verhaal Als je droom is om vanbinnen en vanbuiten de mooiste woningen te ontwerpen, dan mag je als bureau zelf natuurlijk niet achterblijven.
Je koopt een nieuwe racefiets en voordat je het weet creëer je de upgrade van een woning. Dat zit zo.
essentieel voor elke opdracht. Als daar geen sprake van is ga je nooit 1,5 jaar lang tijd met elkaar doorbrengen.
Wij hebben de visie van het bedrijf vertaald naar een onmiskenbaar SDK-ontwerp!
Studio Arjan Hogers ontwerpt een penthouse in het project “The View “, in Marbella. Spanje dus.
Een Rijksmonument! Altijd weer een leuke uitdaging.
Binnenkort gaan we aan de slag voor een bestaande woning aan de Beethovenlaan in Helmond. De woning stamt uit 1998, zeer herkenbaar aan de toen gebruikte materialen. Leuk om te delen is dat de eerste bewoonster er nog steeds woont.
Voor een recent opgeleverd project in Helmond lag de vraag niet in méér meters, maar in meer rust, samenhang en beleving.